Top
首页> 新闻 > 正文

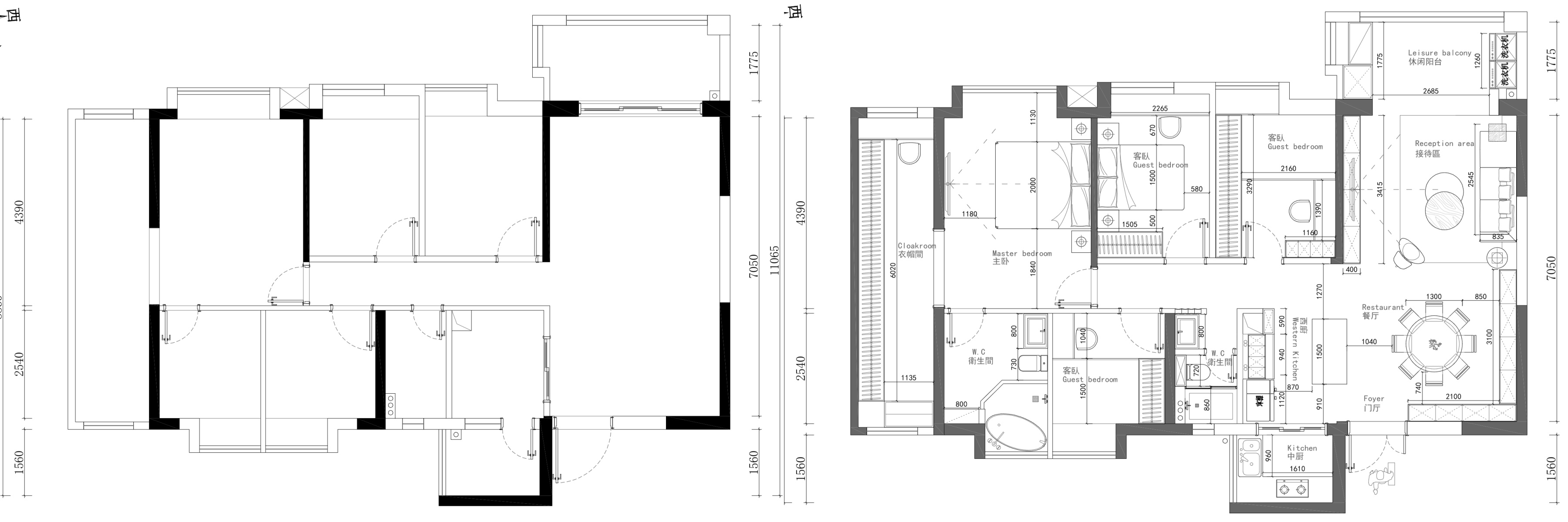
轩怡家装中山140㎡意式婚房装修案例,搞定通透感与海量收纳

对于许多年轻夫妻来说,如何将新房装修成有质感又实用的婚房是一大挑战。本期轩怡家装分享中山佛奥阳光花园一套140㎡意式风格婚房装修案例。轩怡家装通过巧妙布局,充分……...

2025-11-19 17:23:12

品质为基,服务文旅:三晞灯光设备助力湖州太湖龙之梦

湖州太湖龙之梦乐园作为长三角地区的大型文旅综合体,其成功的夜景体验离不开稳定可靠的硬件支持。广州三晞灯光设备有限公司作为湖州太湖龙之梦的灯光设备供应商,为湖州龙……...

2025-11-19 17:22:47

四川和美胜建设护栏工厂

在城市化浪潮汹涌的当下,护栏早已挣脱了单一功能的桎梏,化身为城市空间中兼具安全守护与美学演绎的“隐形艺术家”。四川省和美胜建设工程有限公司,作为西南地区护栏领域……...

2025-11-19 12:08:54

以专业化解决方案应对深海作业需求:柳泰克助力LNG船舶

在能源运输领域——LNG(液化天然气)/LEG(液化乙烯)等液化气船的运营中,安全与效率至关重要。作为船上关键安全系统的组成部分,制氮装置(NitrogenGe……...

2025-11-19 10:15:01

从 “频繁换刀” 到 “高效完工”,苏氏加长钻改写加工节奏

“又断了!”这是不少车间师傅在深孔加工时的无奈感叹。普通加长钻在处理长径比超过5:1的深孔时,要么因刚性不足弯曲,要么因排屑不畅卡滞,严重拖慢生产节奏。而苏氏加……...

2025-11-19 10:14:42

一台让总部高管专程来华的空压机到底强在哪里?

在工业制造领域,压缩空气系统是众多生产流程的核心动力来源。如何实现高效、稳定、节能的压缩空气供应,成为企业降本增效的关键。柳泰克(LIUTECH)秉承阿特拉斯·……...

2025-11-19 10:14:10

GRC 建筑装饰材料:现代建筑的选择

GRC(玻璃纤维增强混凝土)作为新型建筑装饰材料,凭借多元优势在建筑行业迅速普及,成为高端项目的热门选择。其核心优势集中体现在性能、设计、环保与经济性四大方面,……...

2025-11-18 10:44:18

广州歆澜,专研斑敏痘配方,给您稳定安心

在美妆护肤行业的浪潮中,斑敏痘赛道始终充满着挑战与机遇。对于品牌方而言,找到一家靠谱的斑敏痘源头工厂,就如同握住了打开市场大门的钥匙。而真正能让品牌方安心托付、……...

2025-11-17 17:14:08

上海四科:实验室超纯水设备怎么选?

在实验室里,超纯水堪称“刚需”——无论是化学分析、细胞培养,还是分子实验、精密仪器清洗,水质的好坏直接影响实验结果的准确性。但面对市场上五花八门的设备,新手很容……...

2025-11-17 14:43:24

拓展欧亚市场,稳健可靠的中亚俄罗斯陆运为何关键?

在全球化贸易格局下,中亚及俄罗斯市场正成为许多中国制造企业的新增长点,特别是储能柜出口、电子设备出口及半导体设备出口等领域需求旺盛。然而,复杂的跨境物流环境却让……...

2025-11-17 14:43:02

每日必读